Claassen

  • Home
  • Werkzaamheden
    • Plan Vossenweg-Overloop te Liessel
      • Updates
      • Huren: 10 huurappartementen
    • Plan ’t Vaerloe te Veulen
    • Plan De IJsvogel te Meerlo
    • Woningbouw
      • Particuliere woningbouw
      • Particuliere woningbouw “bouwteam”
      • Verandabouw
      • Houtbouw
      • Woningbouwprojecten
    • Utiliteitsbouw
      • Referenties
      • Webcam @ nieuwbouw Jozef Hermans BV Venlo
    • Renovatie
    • Bouwplannen?
      • Starterswoning
      • Downloads
  • Referenties
    • In aanbouw
    • Opgeleverd
  • Nieuws
  • Over ons
    • Vacatures
  • Contact
    • Offerteformulier
    • Contactformulier
Je bent hier: Home / 4 nieuwbouw appartementen te Heide (linkse blok)

4 nieuwbouw appartementen te Heide (linkse blok)

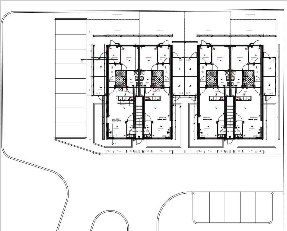
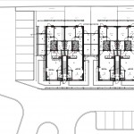
Plattegronden met situatie

Plattegronden met situatie

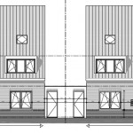
Voorgevels

Voorgevels

Achtergevels

Achtergevels

 

 

 

 

 

 

In 2016 opgeleverd: 4 nieuwbouw appartementen te Heide (linkse blok).

In 2013 opgeleverd: 4 nieuwbouw appartementen te Heide (rechtse blok).

Dit delen:
Share on facebook
Facebook
Share on twitter
Twitter
Share on linkedin
Linkedin
Share on pinterest
Pinterest
Share on email
Email
Share on whatsapp
Whatsapp

Recent opgeleverd

Opgeleverd
Nieuwbouwwoning

Opgeleverd april 2018: vrijstaande woning te Venray – De Brabander

Address Unavailable
Cityname, ST

View Listing
Opgeleverd
Nieuwbouwwoning

Vrijstaande nieuwbouw woning te Venray

Address Unavailable
Cityname, ST

View Listing

In aanbouw

In aanbouw
Nieuwbouwwoning

Vrijstaande woning te Mierlo – Luchen

Address Unavailable
Cityname, ST

View Listing

Keurmerken

SKH woningborggroep komo
bouwradius bouwgarant bouwendnederland
Dit delen:
Share on facebook
Facebook
Share on twitter
Twitter
Share on linkedin
Linkedin
Share on pinterest
Pinterest
Share on email
Email
Share on whatsapp
Whatsapp

Aannemingsbedrijf

Bezoekadres kantoor:
Hollevoort 11
5761 PC Bakel

Afleveradres goederen:
Papenrijt 5
5761 DB Bakel

tel: 0492-342075
info@claassen-bouw.nl

Rob Claassen BV

Statutaire zetel: Bakel
KvK: 17192168
BTW: NL.8161.75.834 B.01

starterswoningen - klik hier

OPENINGSTIJDEN

Op werkdagen van 9.00 tot 12.00 en van 13.00 tot 17.00 uur

Copyright © 2026 · by Claassen BV Log in

MENU
  • Home
  • Werkzaamheden
    • Plan Vossenweg-Overloop te Liessel
      • Updates
      • Huren: 10 huurappartementen
    • Plan ’t Vaerloe te Veulen
    • Plan De IJsvogel te Meerlo
    • Woningbouw
      • Particuliere woningbouw
      • Particuliere woningbouw “bouwteam”
      • Verandabouw
      • Houtbouw
      • Woningbouwprojecten
    • Utiliteitsbouw
      • Referenties
      • Webcam @ nieuwbouw Jozef Hermans BV Venlo
    • Renovatie
    • Bouwplannen?
      • Starterswoning
      • Downloads
  • Referenties
    • In aanbouw
    • Opgeleverd
  • Nieuws
  • Over ons
    • Vacatures
  • Contact
    • Offerteformulier
    • Contactformulier